Graphic images

Plans, drawings, 3D perspectives and other project visuals.

Piece dressing Christophe Sarlandie architecte d'intérieur à Lyon
3D rendering of a dressing room project - DR Pays de Gex project

The Interior Designer’s Tools: Instruments at the Service of Creation

In the interior design process, every project begins with a clear and structured vision of the space. The tools we use as interior designers are essential for transforming this vision into a tangible reality. They are much more than simple technical documents: they serve as a bridge between the client’s ideas and their realization in the space. Through plans, sections, elevations, 3D renderings, sketches, and diagrams, we forge a link between the imaginary and the real—a crucial process for successfully completing an interior design project in Lyon.

The Plans: The Basis of Design

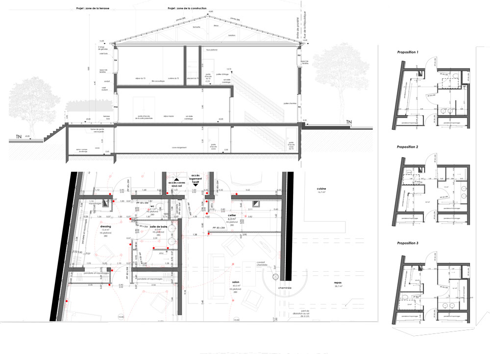
Floor plans are the first step in any interior design project in Lyon, Annecy, or the Pays de Gex region. They allow you to define the exact dimensions of each room and study the layout of the space. These plans serve as the guiding thread throughout the entire design process, providing a precise vision of how each space will be furnished and organized. A well-designed plan takes into account traffic flow, natural light, room orientation, and the specific needs of each user. It is from these plans that the initial layout and decoration proposals take shape.

Whether it’s a floor plan, a furniture plan, or a layout plan, each element must meet specific functional and aesthetic criteria. For example, a layout plan might define the location of an open-plan kitchen, the arrangement of a living room, or the organization of a storage area. Every detail is designed to optimize space and precisely meet the client’s needs.

Concept drawing for the RE Lyon project
Facades project Pays de Gex

Sections and Elevations: Understanding Spatial Organization

Sections and elevations enhance the understanding of the plans. Sections allow you to visualize a “slice” of the building, such as a cross-section of a room, to better understand the volumes, ceiling heights, variations in levels, and the integration of certain elements like staircases or the project’s floors. Elevations, on the other hand, show the arrangement of elements in space, but by representing them vertically, from the front, side, or rear. This provides an overview of the exterior or interior appearance of walls, windows, doors, and other architectural details.

These tools offer a deeper understanding of the space in 3D and allow us to visualize the interior layout even before construction or renovation begins. Thanks to sections and elevations, we can analyze complex details such as wall heights, the proportions of openings, and the placement of structural elements. This information is crucial for a project in the Pays de Gex region to ensure that the design meets both comfort and safety standards.

3D Images: Immersion in the Project

3D images are one of the most powerful tools in an interior designer’s arsenal. They offer a realistic and immersive representation of the project, allowing clients to fully envision themselves in their future space. These 3D renderings show not only the layout of each room, but also the textures, materials, lighting, and colors. Thanks to specialized software, we can create realistic simulations where every detail of the project comes to life.

The advantage of 3D images lies in their ability to offer a comprehensive view of the project while allowing for easy adjustments to elements such as material choices, wall colors, or furniture placement. These visuals help refine decisions and anticipate the final effect of a project, enabling the testing of different configurations or styles before the implementation phase begins in Lyon.

3D renderings of the living room/kitchen project by CJ Lyon
MB Pays de Gex project facades

Sketches: The Outline of the Idea

Sketches are the very essence of architectural creativity. These drawings, created first by hand and then on a computer, allow for the rapid framing of ideas, the exploration of concepts, and the visualization of solutions before embarking on more detailed design. Sketches are intuitive tools, where spontaneity and freedom take precedence over precision. They offer an overview of the project’s spirit, capturing ideas, atmospheres, volumes, and moods long before a plan or 3D image formalizes them.

Sketches are also used to express more creative details or unique elements that will stand out in the final design, such as the shape of a custom-made piece of furniture or the layout of a particular space. They allow for the rapid exchange of ideas and the exploration of alternative solutions for a project in the Pays de Gex region.

Diagrams: Technical Clarity

Finally, diagrams are technical tools that allow for the explanation of more detailed aspects of the project, such as the layout of electrical networks, ventilation, heating systems, and lighting. They provide a clear understanding of the functional and technical aspects that cannot be overlooked in interior design. These diagrams ensure that each installation complies with current standards and is perfectly integrated into the overall project.

3D diagram of the MB Pays de Gex project
Study plan - DR Lyon project

A Preview of an Interior Architecture Study Report

The tools shared here are those we have used in our past collaborations to envision and realize interior design projects in the Pays de Gex, Annecy, and Lyon regions. They offer a glimpse of what a detailed design study could look like, with a comprehensive, structured approach perfectly tailored to each client’s specific needs. These documents form the foundation of our creative work and are essential for ensuring the success of every project, meeting functional, aesthetic, and technical requirements.

At Atelier Christophe Sarlandie, each project is a unique adventure, and our tools allow us to explore it in depth before it takes shape in the real world. We invite you to discover these elements and draw inspiration from them to imagine your own interior design projects, while ensuring that they will be conceived and executed with rigor, precision, and passion.